1393/09/03

EVELYN GRACE ACADEMY

اشتراک گذاری

هرچند که شکل فرم و ویژگی های آکادمی اولین گریس Evelyn Grace Academy در آثار زاها حدید Zaha Hadid همواره حائز اهمیت بوده است، اما پاسخگویی پلان به پیچیدگی های عملکردی فضاهای آموزشی در طرح وی، مهمترین نکته ای بود که داوران در هنگام اهدای جایزه معتبر معماری استرلینگ Stirling Prize در سال 2011 برآن تاکید نمودند. حدید Hadid در سال 2010 نیز این جایزه را برای طرح موزه ای در رم از آن خود ساخته بود. 

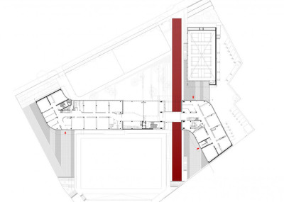
خطوط شکسته ، زوایای تند و دیواره هایی با شیب ملایم که شاخصه کارهای معاصر زاها حدید Zaha Hadid می باشند، در این ساختمان نیز به چشم می خورند. اما به راستی ساختار فضایی این آکادمی حیرات انگیز است. یکی از تئوری های نوین در خصوص مدارس آموزشی، ساختاری تحت عنوان "مدرسه در مدرسه" است. در این ساختار، چندین مدرسه آموزشی مستقل با هم ترکیب شده ، از فضاهای ورزشی و جمعی مشترک استفاده نموده و به عنوان یک آکادمی شناخته می شوند. در چنین ساختاری عموماً مدارس که هر یک به مقطع تحصیلی خاصی  اختصاص دارند، با فاصله کمی از یکدیگر احداث می شوند تا ضمن استقلال هر مدرسه ، وحدتی میان آن ها برقرار شده  و به عنوان یک کل قابل تشخیص باشند. آکادمی اولین گریس Evelyn Grace Academy نمونه ای از این ساختار است که در آن چهار دبستان مستقل تحت عنوان یک آکادمی فعالیت دارند. طرح زاها حدید Zaha Hadid  برای این آکادمی به خوبی توانسته است به نیازها و چالش های برنامه پیشنهادی پاسخ دهد. بدین ترتیب ساختمان چهارمدرسه به نحوی با یکدیگر ترکیب و بنایی واحد را تشکیل داده اند که در عین وابستگی به یکدیگر ، هم از لحاظ فرم بیرونی و هم از لحاظ عملکرد درونی قابل تفکیک می باشند. این مجموعه که نخستین اثر در مقیاس شهری است که توسط زاها حدید Zaha Hadid  درانگلستان طراحی و اجرا شده است، در محله بریکستون در جنوب لندن واقع شده است ، محله ای که اغلب ساکنین آن رنگین پوست بوده و بالاترین آمار جرم را در سرتاسر اروپا دارد. بدین ترتیب می توان گفت یکی از اهداف اصلی برای تامین هزینه و احداث این مجموعه ی شاخص و متفاوت، تغییر و اصلاح فرهنگی کودکان قشر کم در آمد این منطقه بوده است. به گفته والدین دانش آموزان، تحصیل در این مجموعه علاوه بر اشتیاق به تحصیل، در کودکان احساس غرور و شخصیتی به وجود آورده است که پیش از آن هرگز تجربه اش نکرده اند، ساختمان در میان انبوهی از مجتمع های مسکونی بنا شده و رویکردی ورزشی دارد. این رویکرد در ساختار پلان مجموعه قابل مشاهده می باشد. فضاهای ورزشی پیوندی تنگاتنگ با ساختمان داشته و مسیر دوصد متر با عبور از زیر پل ارتباطی ساختمان به فضای تردد و مسیر عبور روزانه دانش آموزان تبدیل شده است. همچنین قرارگرفتن مدارس بر روی یکدیگر امکان اختصاص فضای بیشتری را برای زمین های ورزشی روباز فراهم ساخته است. علاوه بر زمین های روبازی که توسط ساختمان احاطه شده اند، سالن ورزشی سرپوشیده ای نیز برای ورزش های سالنی درنظر گرفته شده است که هرچند مستقل از حجم اصلی به نظر می رسد اما در تراز زیرزمینی با سایر فضاهای آکادمی ارتباط دارد. 

این ساختمان که دارای دو ورودی در تراز همکف می باشد، جداره هایی شفاف و دعوت کننده داشته و بالکن های عریضی در سطوح مختلف برای گذران اوقات فراغت میان ساعات درس دانش آموزان طراحی شده است. جهت گیری و فرم ساختمان به نحوی است که تمامی جبهه های آن دارای اهمیت بوده و به خوبی از  دو خیابان اصلی در اطراف سایت قابل رویت و دسترسی می باشد. در داخل ساختمان علاوه بر کلاس های آموزشی، سالن هایی چند منظوره تعبیه شده است که با اندک تغییری می توانند تغییر کاربری داده و به سالن پذیرایی، سالن ورزش، کلاس درس جمعی و سالن رقص تبدیل شوند. راهروهای عریض، بالکن ها و نشیمن های متعدد در فضاهای داخلی جهت شکل دهی به تعاملات دوستانه میان دانش آموزان مقاطع تحصیلی مختلف طراحی شده اند.



برگرفته از:
طالبیان، نیما، آتشی، مهدی، نبی زاده، سیما، 1390، "مجموعه کتب عملکردی معماری، مجتمع آموزشی"، انتشارات کسری.
www.zaha-hadid.com
www.bustler.net
www.architectural-review.com
www.architectsjournal.co.uk
www.archinnovations.com

نظرات

نظری وجود ندارد، اولین نفری باشید که نظری ثبت می کنید.