1393/05/17

EWHA WOMANS UNIVERSITY

اشتراک گذاری

دانشگاه تک جنسیتی "اوها Ewha Womans University " در سئول Seoul, South Korea ، بزرگترین و معتبرترین مرکز آموزشی زنان در جهان است. این مرکز آموزشی درسال 1886 و تنها با یک دانشجو تاسیس گردید، پس از سال ها تلاش درسال 1925 به عنوان کالج و درسال 1945 به عنوان نخستین دانشگاه رسمی در کره جنوبی به ثبت رسید. امروزه این دانشگاه معتبرترین مرکز آموزشی زنان در آسیا بوده و در میان 170 هزار دانشجوی این دانشگاه، نام بسیاری از مشاهیر ملی کره جنوبی نظیر نخستین زن کره ای که موفق به کسب مدرک دکتری گردید، نخستین قاضی زن و تنها نخست وزیر زن این کشور به چشم می خورد.

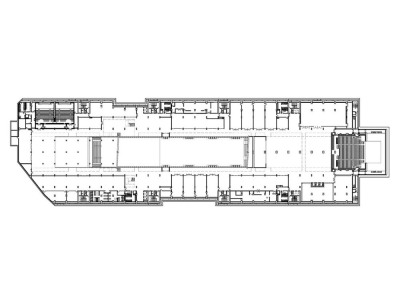
طراحی ساختمان جدید این دانشگاه به منظور تحصیل 20 هزار دانشجو، در سال 2004 به مسابقه گذاشته شد که درطی آن طرح پیشنهادی "دومینیک پرولت Dominique Perrault" معمار صاحب نام فرانسوی به عنوان طرح برنده اعلام گردید. عملیات احداث  این ساختمان درسال 2008 به اتمام رسیده و از آن بهره برداری گردید. طرح خلاقانه ی معمار ضمن معرفی دیدگاهی متفاوت به فضاهای آموزشی، نهایت بهره را از موقعیت و شیب زمین برده و ساختمان را در سطح زیرین فضای سبز وسیع پنهان می کند. در این پارک شهری که بر روی بام بخش اصلی ساختمان دانشگاه قرار دارد مسیرهای تردد پیاده با شیبی ملایم طراحی شده اند. بدین ترتیب علاوه بر دعوت از عموم برای حضور در فضای دانشگاه، این پارک به محلی برای اوقات فراغت دانشجویان تبدیل شده و در عین حال دید به فضاهای آموزشی داخلی ساختمان را نیز ممکن می سازد. 

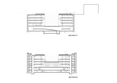
کانسپت طرح و ایده های فضایی "دومینیک پرولت Dominique Perrault" در این بنا نیز همچون کتابخانه محلی فرانسه در پاریس بسیار شفاف و درعین حال آبستره می باشند. در مرکز سایت، آکس حرکتی وسیعی طراحی شده است که از فضای پیرامون میدان مقابل دانشگاه آغاز شده و همچون خطی مستقیم دانشگاه را می شکافد. درمرکز این مسیر، فضای تجمع و حیاطی مسطح وجود دارد که پیش فضای مقابل ورودی اصلی دانشگاه را تعریف می کند. نیمه دیگر به پلکانی عریض و شاخص اختصاص یافته که دسترسی به سایت را از ترازی بالاتر در جبهه پشتی ممکن می سازد. تناسبات پله ها به نحوی است که این فضای نیمه محصور را به فضای تجمعی در قلب دانشگاه تبدیل کرده و در بسیاری از مواقع از آن به عنوان آمفی تئاتر رو باز استفاده می شود. در زیر این پلکان بخش وسیعی از فضاهای داخلی نظیر آمفی تئاتر اصلی دانشگاه قرار دارد. جداره های این آکس تماماً شیشه بوده و نور طبیعی را به داخل فضاهای آموزشی، راهروهای ارتباطی و ویدهای داخل ساختمان منتقل می کنند. آنچه بسیار جالب توجه است، روشنایی جداره های این آکس در شب است که این فضا را به خطی از نور تبدیل کرده و به واسطه انعکاس روشنایی داخل ساختمان بر فریم های فلزی و براق جداره، فضایی رویایی و زیبا را در معرض دید و تجربه دانشجویان و شهروندان می گذارد. بدین ترتیب پیوندی ارگانیک و عمیق میان پروژه با سایت و زمینه شهری برقرار شده و نه تنها ساختمان در تراز بالایی به عنوان پارک و فضای سبز شهری به نظر می رسد، بلکه از آن به عنوان محل عبور و مرور، تجمع و تعاملات روزانه نیز استفاده می شود. در مقاطع عرضی ساختمان، بخش انتهایی بنا ارتفاعی معادل با شش طبقه داشته و در تراز زیرزمین ضمن پیوند دو ساختمان اصلی مستقل به یکدیگر از تمامی مساحت سایت استفاده شده است. در این طبقات علاوه بر بخش های اداری، کلاس های درس و سالن های سمینار و جلسات، فضاهای جنبی متنوعی نظیر کتابخانه، دو سالن سینما، سالن های ورزشی، فروشگاه های تجاری و پارکینگی به مساحت 20 هزار مترمربع در زیربام سبز دانشگاه قرار گرفته اند. علاوه بر آکس مرکزی، ورود به فضای داخلی از ورودی های فرعی در جداره های خارجی ساختمان ممکن بوده و آسانسورهایی نیز برای ورود مستقیم دانشجویان و معلولان تعبیه شده اند.

برگرفته از:
طالبیان، نیما، آتشی، مهدی، نبی زاده، سیما، 1390، "مجموعه کتب عملکردی معماری، مجتمع آموزشی"، انتشارات کسری.
www.archicentral.com
www.archdaily.com
www.arcspace.com
www.dailytravelphotos.com
www.perraultarchitecte.com
www.portalarquitetonico.com
duranvirginia.wordpress.com
www.perraultarchitecte.com
www.europaconcorsi.com

نظرات

نظری وجود ندارد، اولین نفری باشید که نظری ثبت می کنید.